











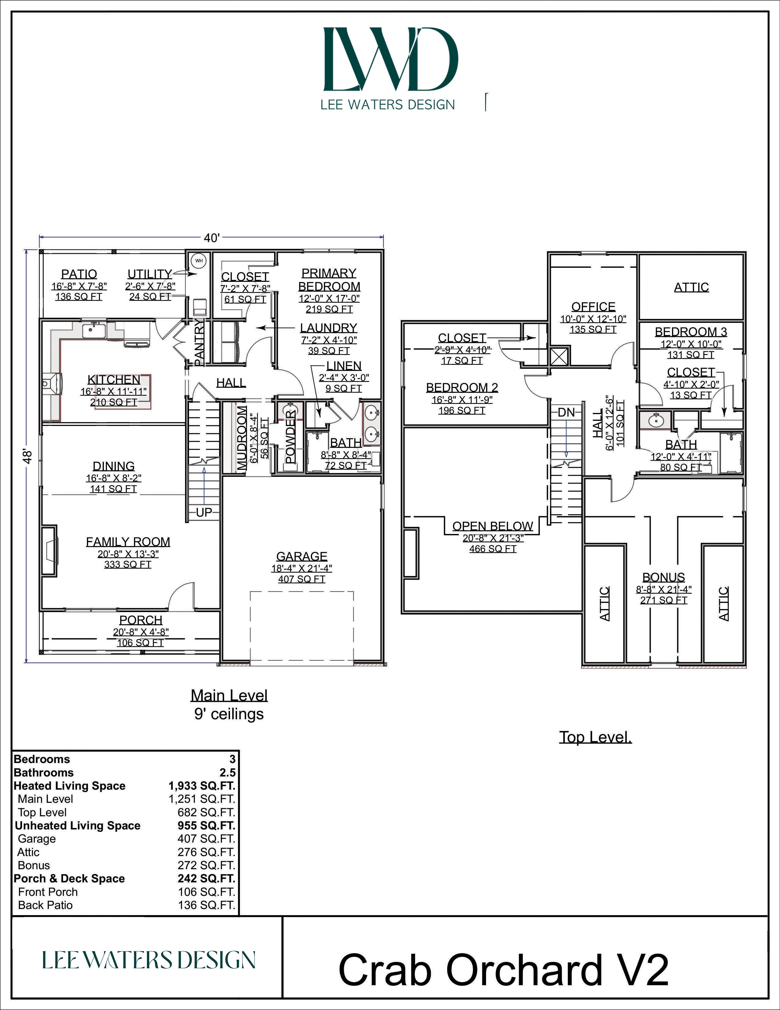
Crab Orchard
Plan Code: P-442-006-S
SQUARE FOOTAGE BREAKDOWN
Total Heated Area: 2,670 sq. ft.
First Floor: 1,319 sq. ft.
Second Floor: 1,351 sq. ft.
Unheated Area: 540 sq. ft.
BEDS/BATH
Bedrooms: 4
Full Bathrooms: 3
Half Bathrooms: 1
STYLE
Craftsman
GARAGE
Type: Attached
Area: 407 sq. ft.
Count: 2
Entry: Front
FOUNDATION TYPE
Standard Foundations: Slab
Optional Foundations: Walkout, Monolithic Basement, Daylight, Basement, Crawl
ROOF DETAILS
Primary Pitch: 10 on 12
Secondary Pitch: 14 on 12
Framing Type: Stick or Truss
EXTERIOR WALLS
Standard Type(s): 2x4
Optional Type(s): 2x6
DIMENSIONS
Width: 40’
Depth: 48’
CEILING HEIGHTS
First Floor / 9’0”
Second Floor / 8’0”
THIS PLAN CAN BE MODIFIED.
Choose options












Crab Orchard
Sale price$1,245.00