Skip to content

Cart

Your cart is empty

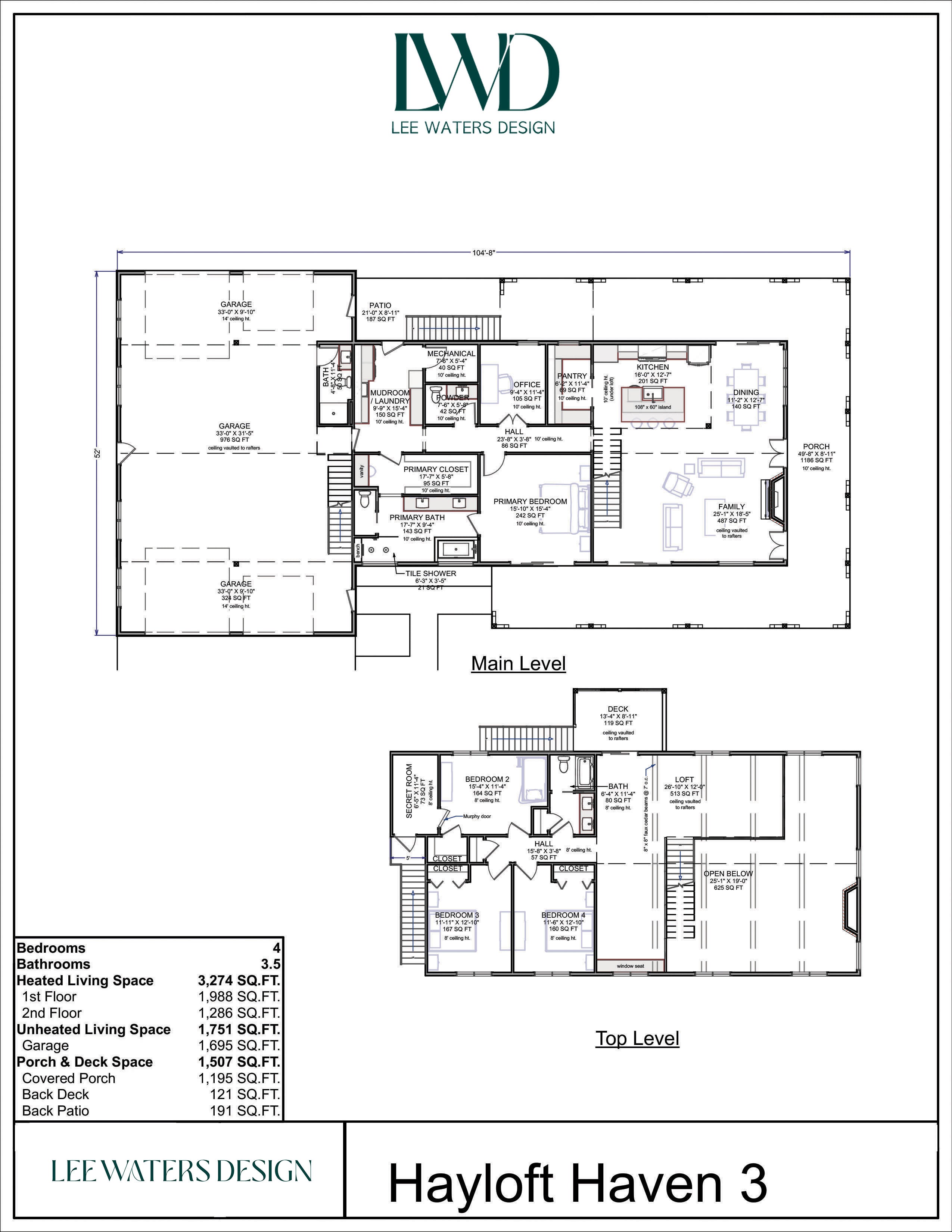
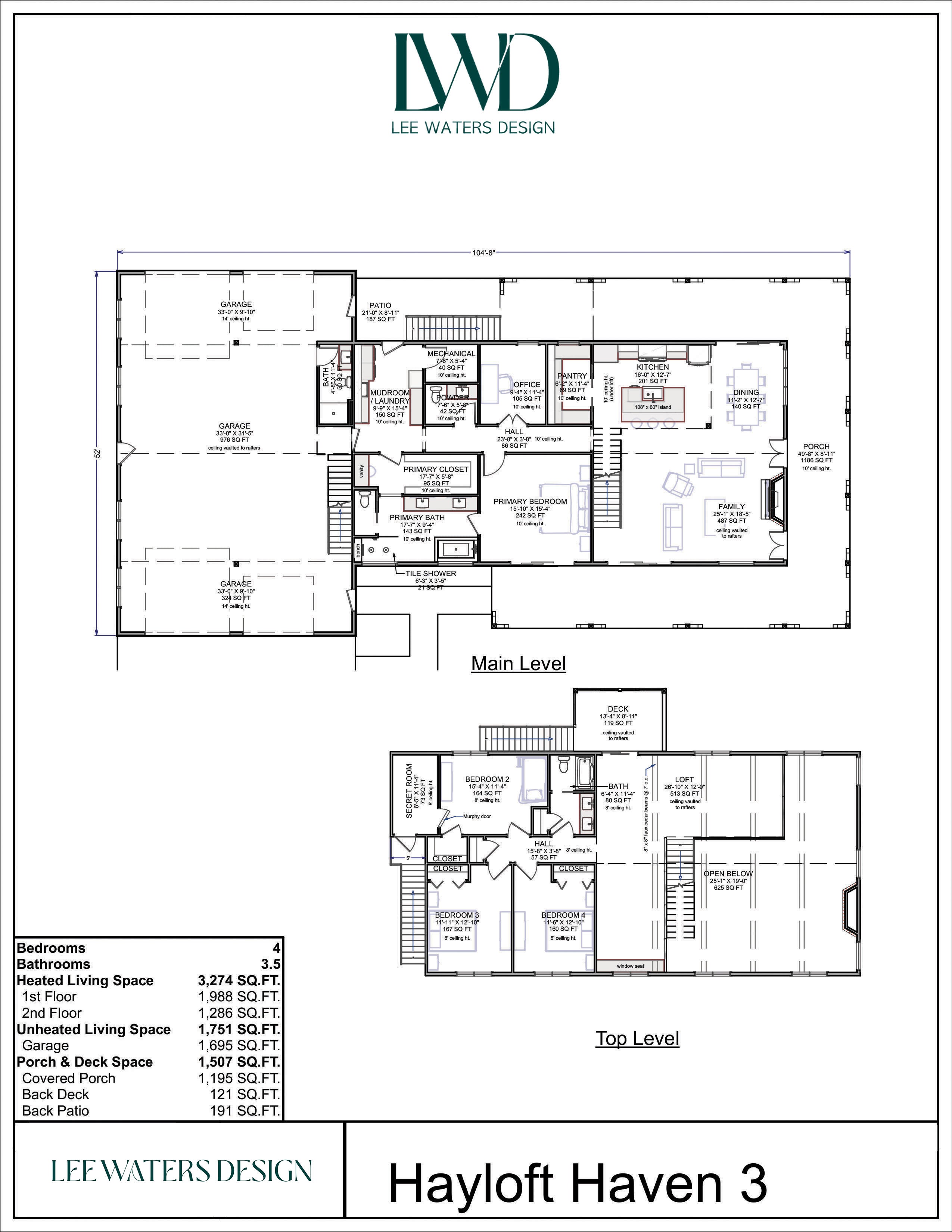
Hayloft Haven III

Floor Plan for Hayloft Haven III
Sale price$1,245.00

Plan Code: P-444-001-S

SQUARE FOOTAGE BREAKDOWN

Total Heated Area: 3,274 sq. ft.
First Floor: 1,988 sq. ft. 
Second Floor: 1,286 sq. ft.
Unheated Area: 1,751 sq. ft.


BEDS/BATH

Bedrooms: 4
Full Bathrooms: 3
Half Bathrooms: 1


STYLE

Barndominium


GARAGE

Type: Attached
Area:  1,695 sq. ft.
Count: 2
Entry: Front, Back


FOUNDATION TYPE

Standard Foundations: Slab
Optional Foundations: Walkout, Monolithic Basement, Daylight, Basement, Crawl


ROOF DETAILS 

Primary Pitch: 10 on 12
Secondary Pitch: 2 on 12 
Framing Type: Stick or Truss



EXTERIOR WALLS

Standard Type(s): 2x6
Optional Type(s): 2x6



DIMENSIONS

Width: 104’8“
Depth: 52’
Max Ridge Height:  33’1”



CEILING HEIGHTS

First Floor / 10’0”
Second Floor / 8’0”


THIS PLAN CAN BE MODIFIED. 

Hayloft Haven III
Hayloft Haven III Sale price$1,245.00