



















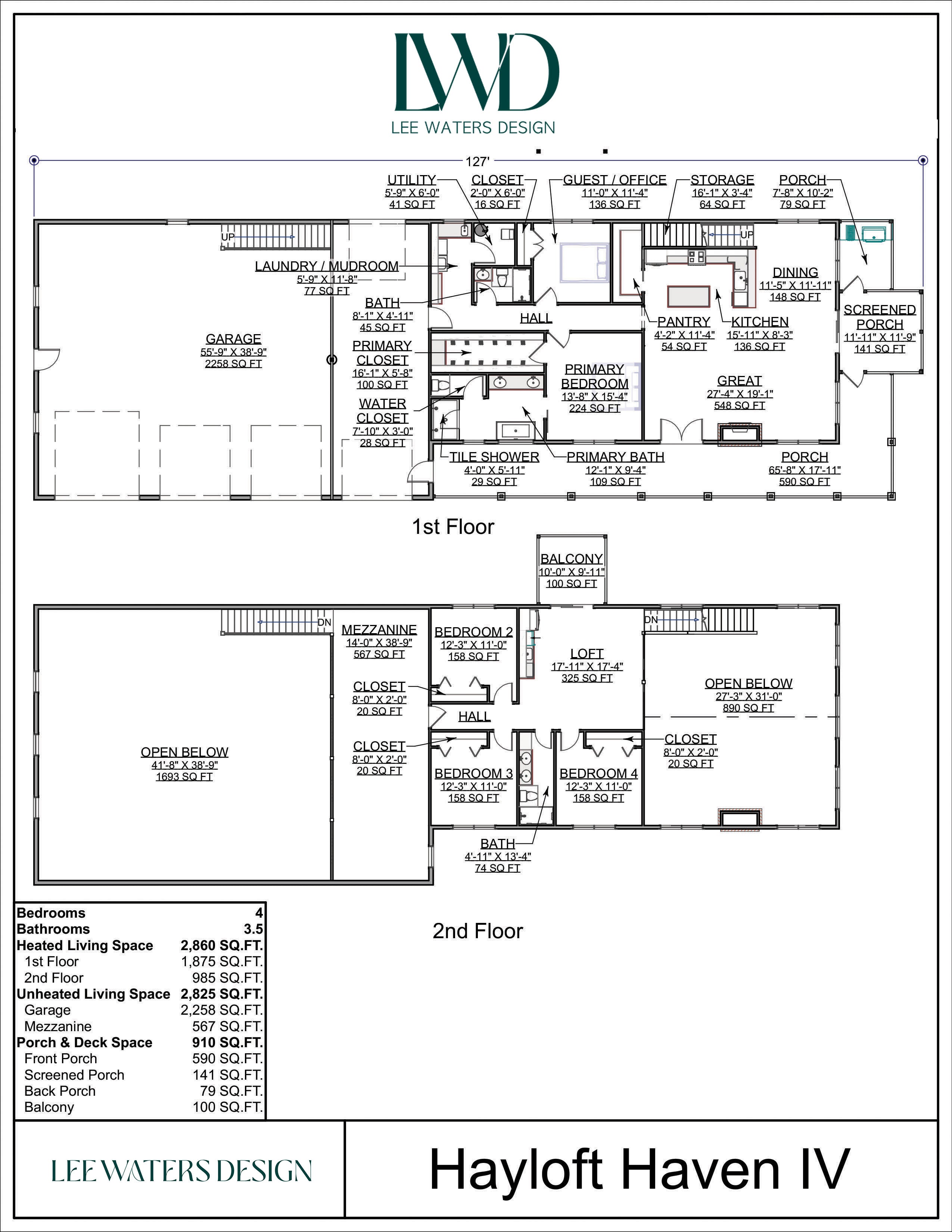
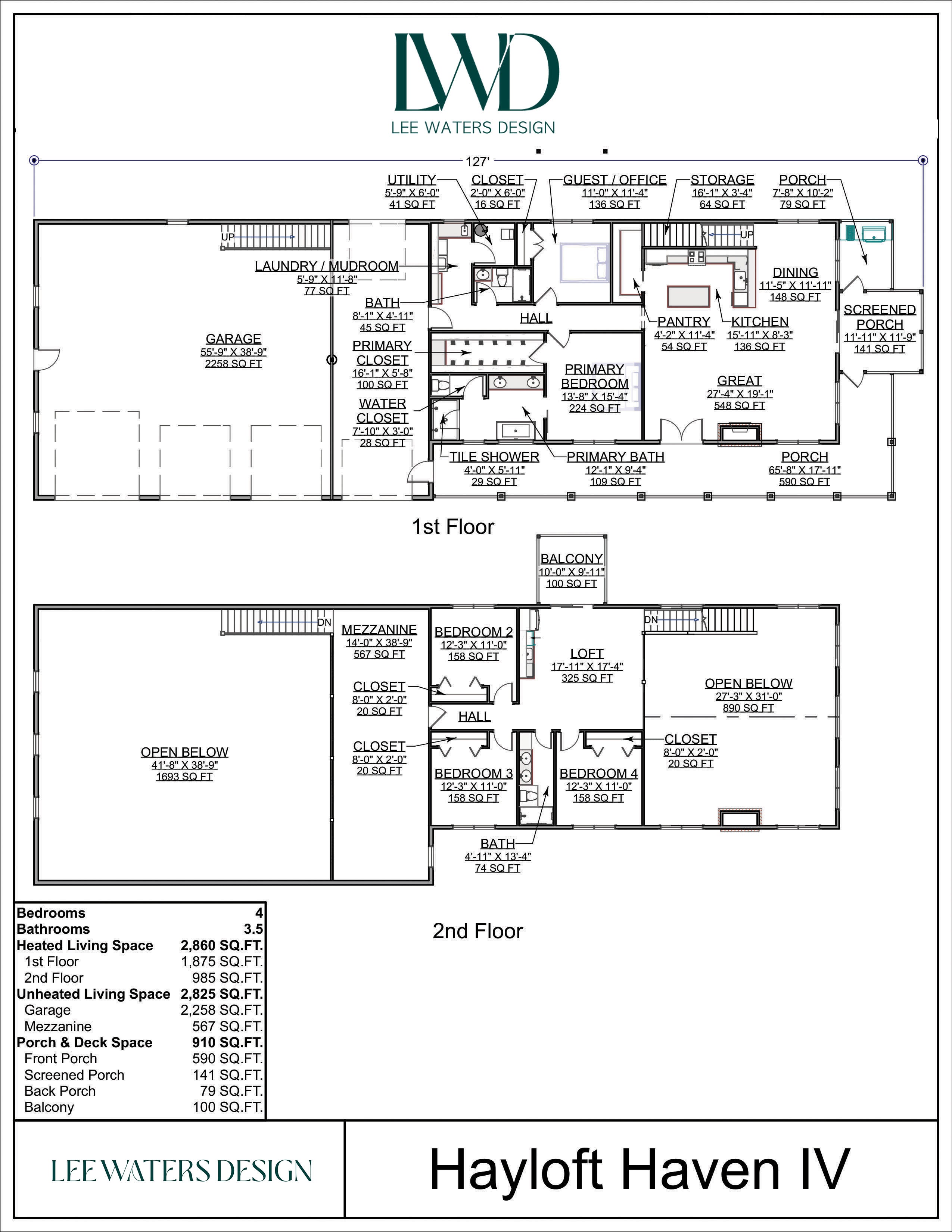
Hayloft Haven IV
Plan Code: P-444-002-S
SQUARE FOOTAGE BREAKDOWN
Total Heated Area: 2,860 sq. ft.
First Floor: 1,875 sq. ft.
Second Floor: 985 sq. ft
BEDS/BATH
Bedrooms: 4
Full Bathrooms: 3
Half Bathrooms: 1
STYLE
Barndominium
GARAGE
Type: Attached
Area: 2258 sq. ft.
Count: 4
Entry: Front
FOUNDATION TYPE
Standard Foundations: Slab
Optional Foundations: Walkout, Monolithic Slab, Daylight, Crawl, Basement
ROOF DETAILS
Primary Pitch: 8 on 12
Secondary Pitch: 2 on 12
Framing Type: Stick or Truss
EXTERIOR WALLS
Standard Type(s): 2x6
Optional Type(s): 2x6
DIMENSIONS
Width: 127’- 0”
Depth: 50’-0”
Max Ridge Height: 30’-9.5”
CEILING HEIGHTS
First Floor / 10’0”
Second Floor / 8’0”
THIS PLAN CAN BE MODIFIED.
Choose options




















Hayloft Haven IV
Sale price$1,245.00