













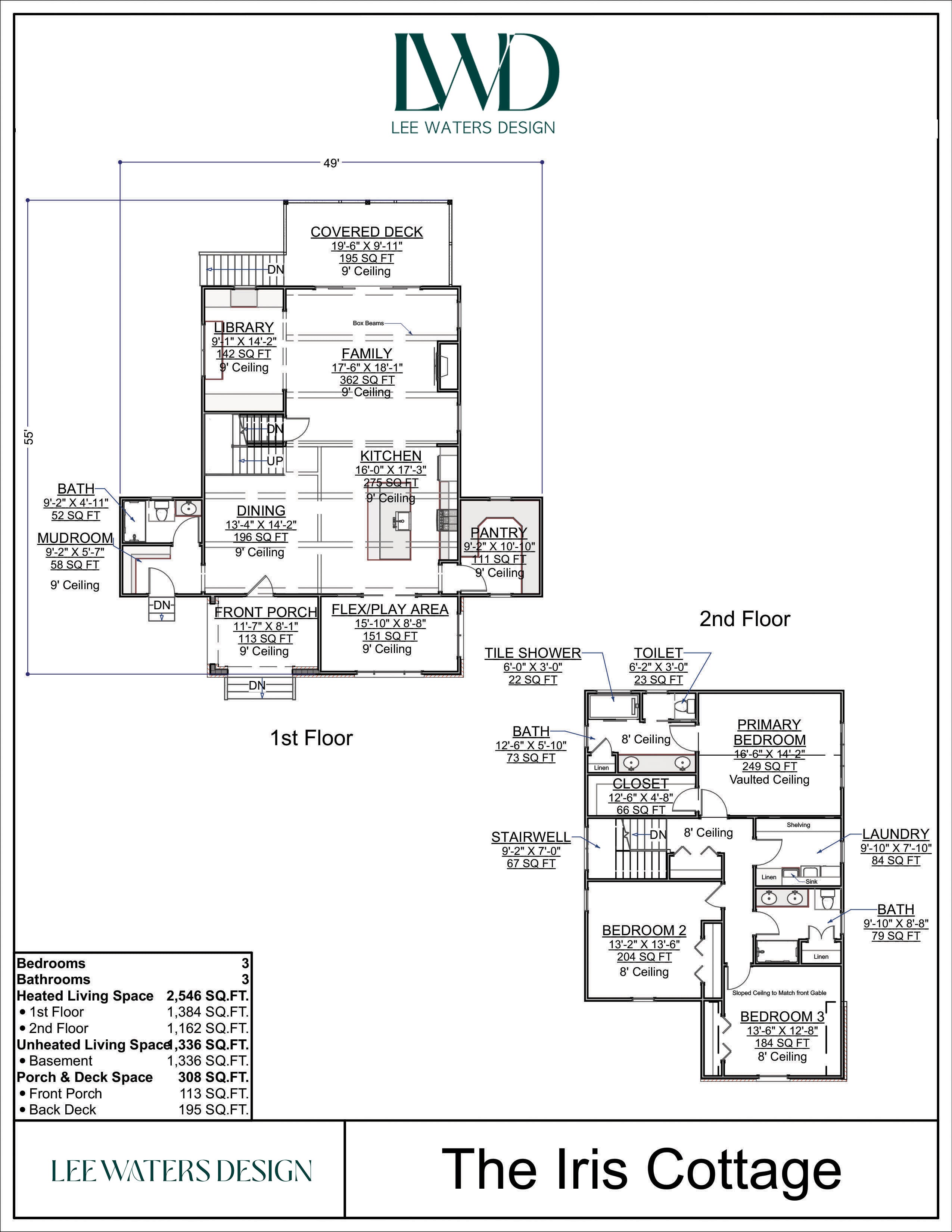
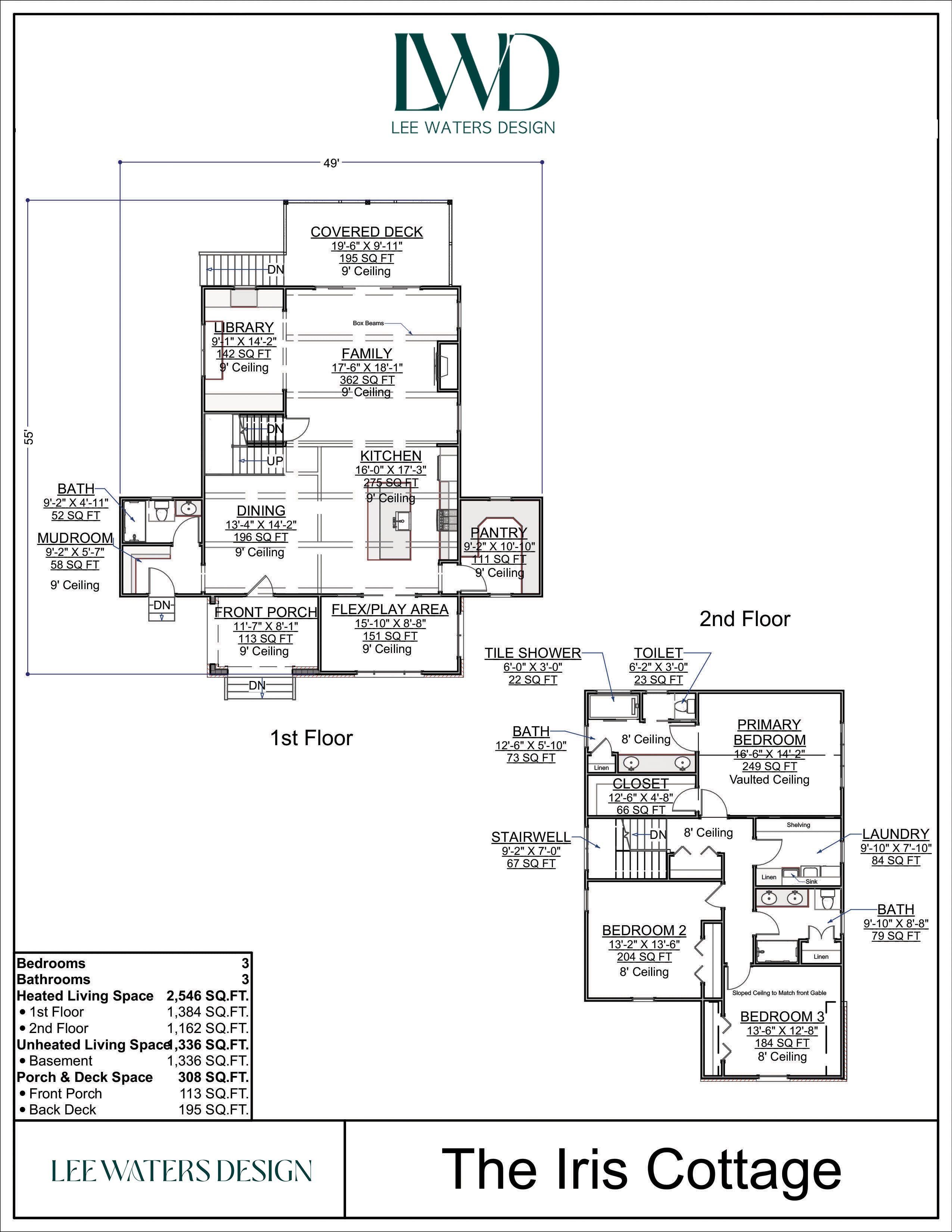
Iris Cottage
Plan Code: P-330-016-B
SQUARE FOOTAGE BREAKDOWN
Total Heated Area: 2,546 sq. ft.
First Floor: 1,384 sq. ft.
Second Floor: 1,162 sq. ft
Finished Lower Level: 1,336 sq. ft.
BEDS/BATH
Bedrooms: 3
Full Bathrooms: 3
Half Bathrooms: 0
STYLE
Tudor, Modern
GARAGE
None
FOUNDATION TYPE
Standard Foundations: Basement
Optional Foundations: Walkout, Monolithic Slab, Daylight, Crawl, Slab
ROOF DETAILS
Primary Pitch: 8 on 12
Secondary Pitch: 14on 12
Framing Type: Stick or Truss
EXTERIOR WALLS
Standard Type(s): 2x4
Optional Type(s): 2x6
DIMENSIONS
Width: 49’0“
Depth: 55’0”
Max Ridge Height: 31.9’0”
CEILING HEIGHTS
First Floor / 9’0”
Second Floor / 8’0”
Lower Level / 9’0”
THIS PLAN CAN BE MODIFIED.
Choose options














Iris Cottage
Sale price$1,245.00