












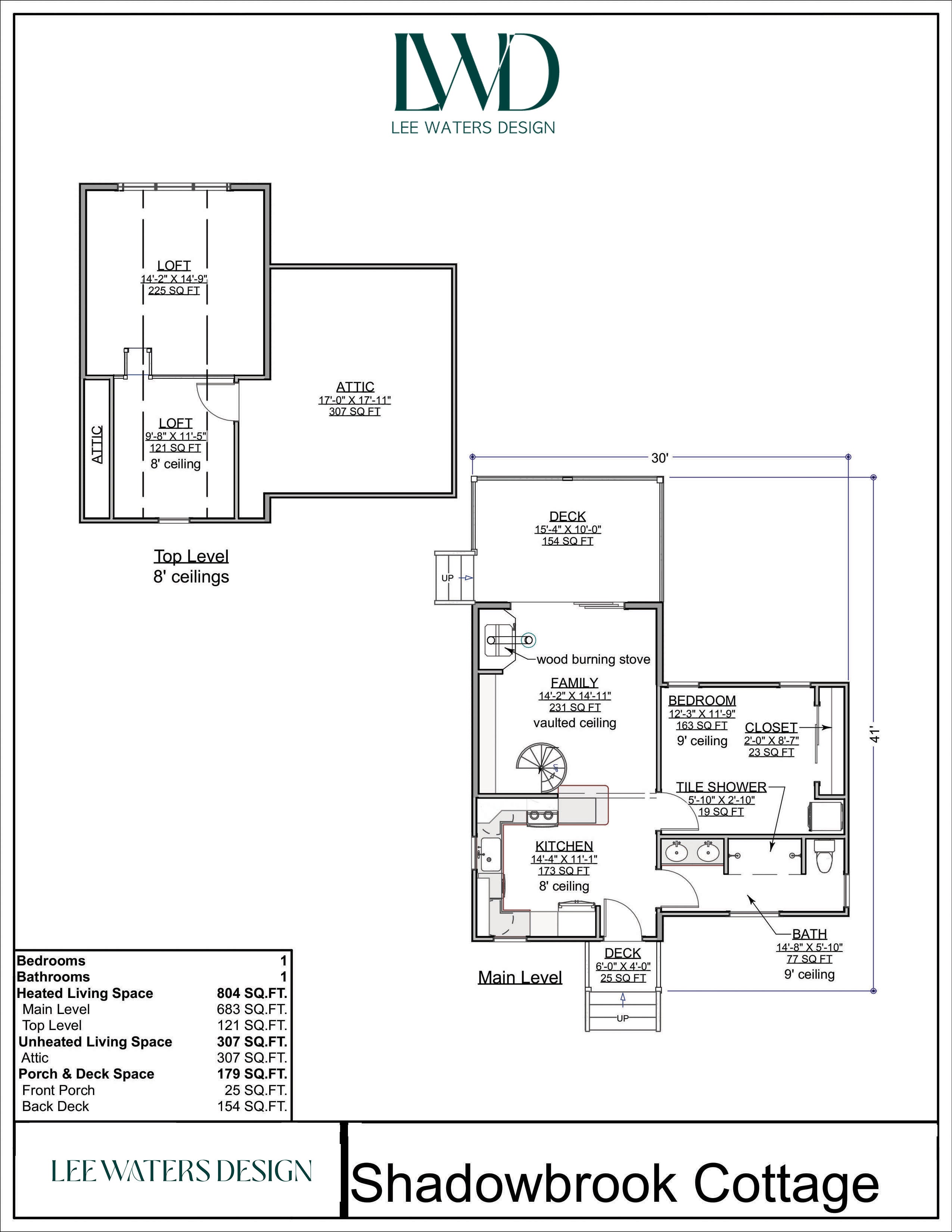
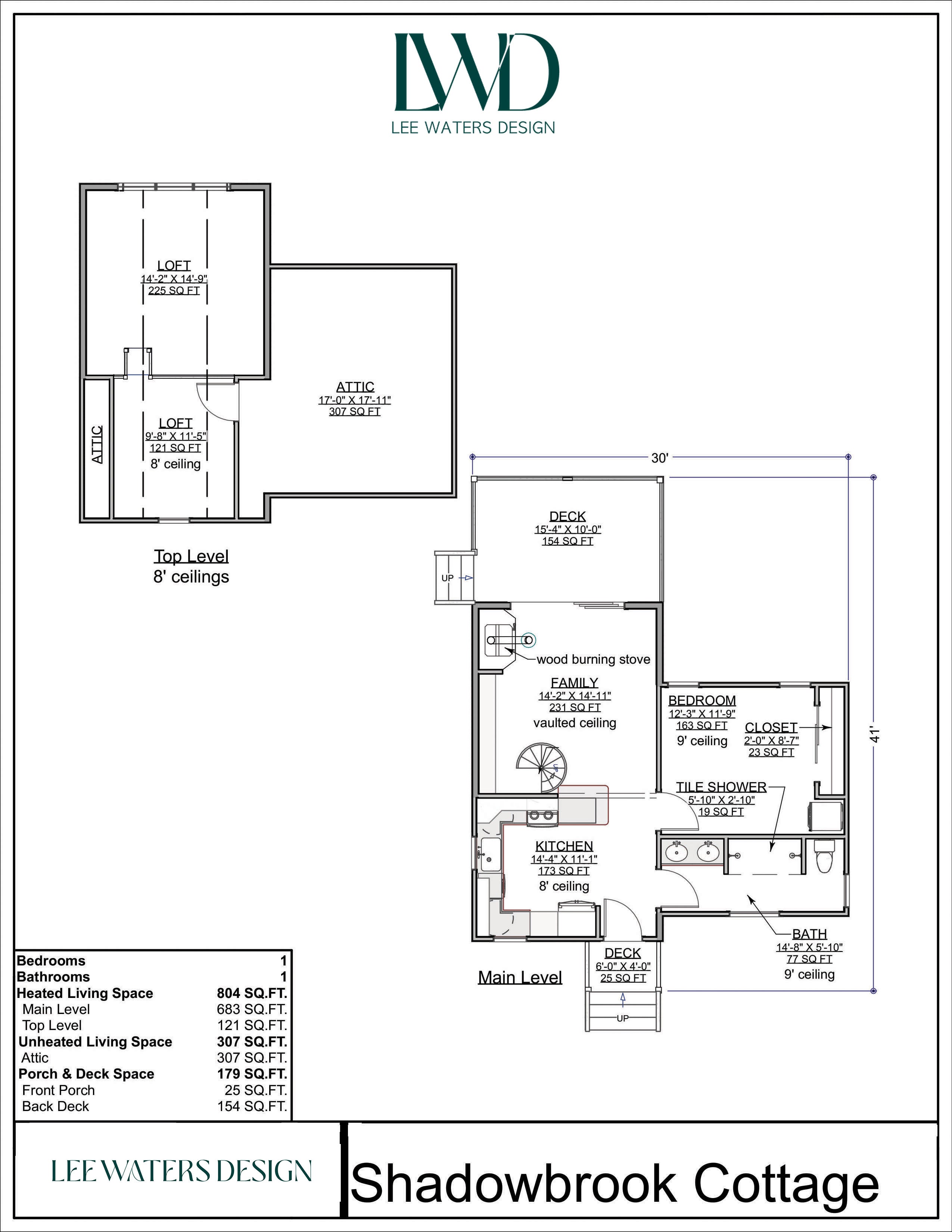
Shadowbrook Cottage
Plan Code: P-110-002-C
SQUARE FOOTAGE BREAKDOWN
Total Heated Area: 804 sq. ft.
First Floor: 683 sq. ft.
Second Floor: 121 sq. ft.
Lower Level, Unfinished: 307 sq. ft.
BEDS/BATH
Bedrooms: 1
Full Bathrooms: 1
Half Bathrooms: 0
STYLE
Dark Academia
GARAGE
None
FOUNDATION TYPE
Standard Foundations: Slab
Optional Foundations: Walkout, Monolithic Basement, Daylight, Crawl
ROOF DETAILS
Primary Pitch: 18 on 12
Secondary Pitch: 12 on 12
Framing Type: Stick or Truss
EXTERIOR WALLS
Standard Type(s): 2x4
Optional Type(s): 2x6
DIMENSIONS
Width: 30’0“
Depth: 41’0”
Max Ridge Height: 23’4”
CEILING HEIGHTS
First Floor / 8’, 9’ VAULTED
Second Floor / 8’ PARTIAL VAULT
THIS PLAN CAN BE MODIFIED.
Choose options













Shadowbrook Cottage
Sale price$895.00