










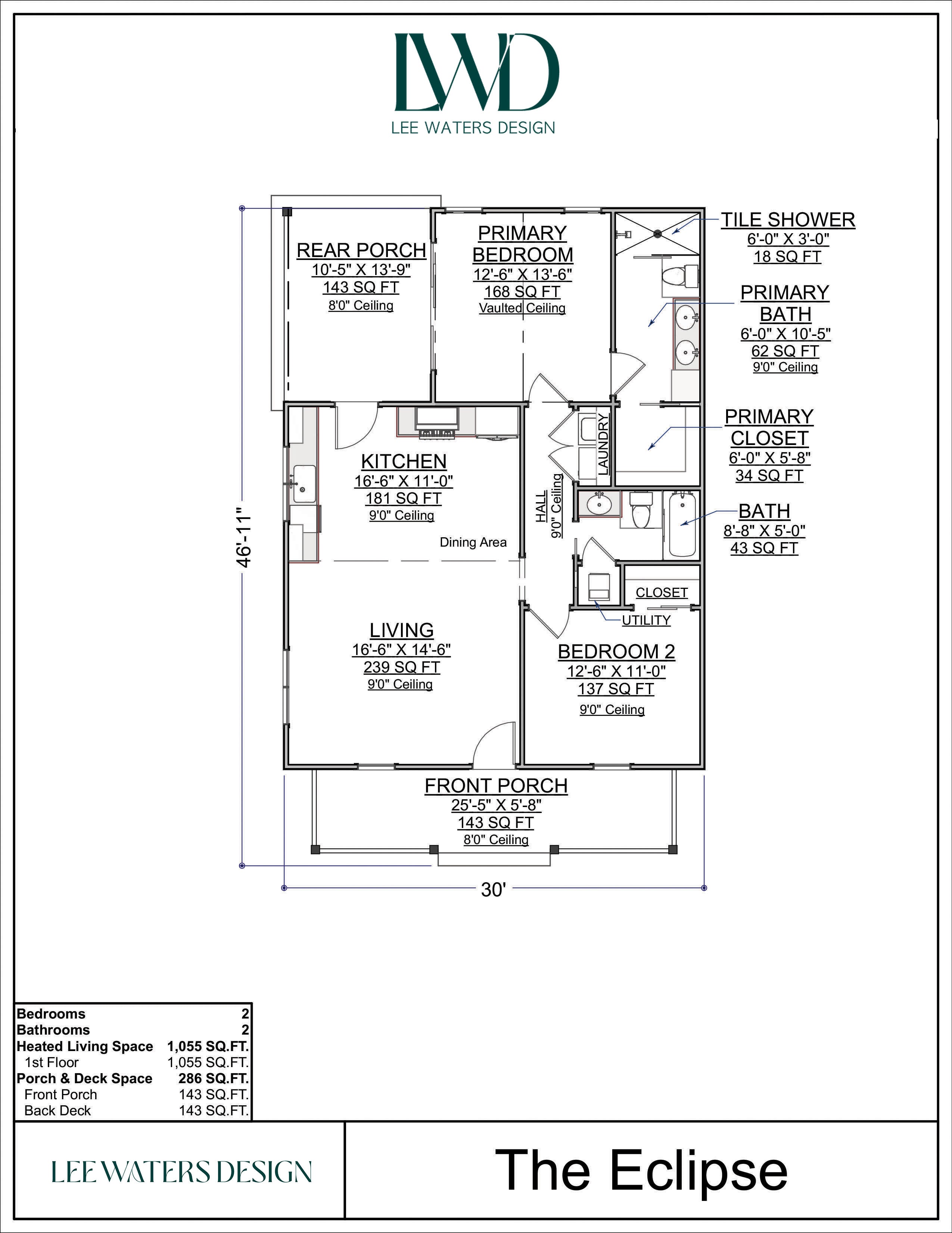
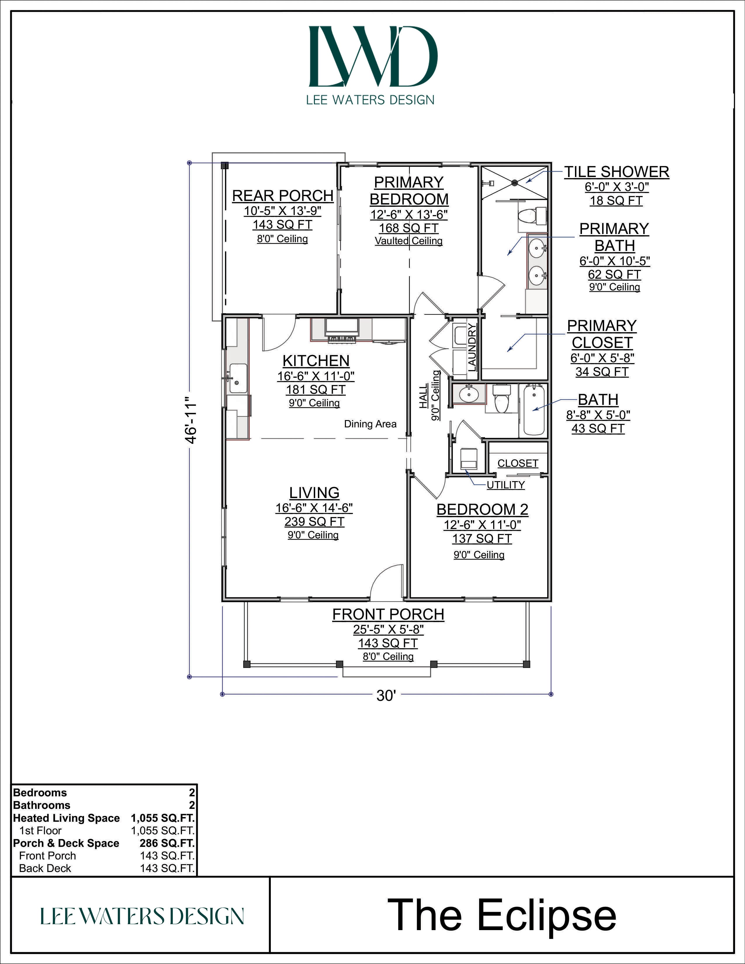
The Eclipse
Plan Code: P-220-003-C
SQUARE FOOTAGE BREAKDOWN
Total Heated Area: 1,055 sq. ft.
First Floor: 1,055 sq. ft.
BEDS/BATH
Bedrooms: 2
Full Bathrooms: 2
Half Bathrooms: 0
STYLE
Tiny House
GARAGE
None
FOUNDATION TYPE
Standard Foundations: Crawlspace
Optional Foundations: Walkout, Monolithic Slab, Daylight, Crawl, Basement
ROOF DETAILS
Primary Pitch: 8 on 12
Secondary Pitch: 10 on 12
Framing Type: Stick or Truss
EXTERIOR WALLS
Standard Type(s): 2x4
Optional Type(s): 2x6
DIMENSIONS
Width: 30’
Depth: 40’
Max Ridge Height: 18’-3”
CEILING HEIGHTS
First Floor / 9’0"
THIS PLAN CAN BE MODIFIED.
Choose options











The Eclipse
Sale price$1,095.00